shop-logo

LIN-X1000

日本Lamp超重型巴士門(90kg)

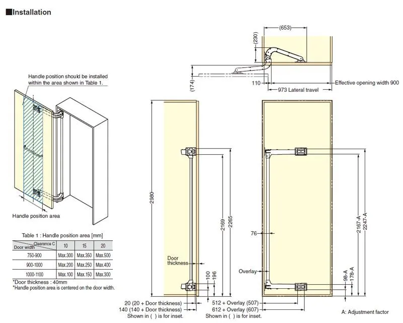
日本進口極重型巴士門(Lin-X1000)門片載重最重可達90kg,適用門寬為750-1100mm,門高為2400-2980mm。
手臂撐桿內建緩 衝氣壓棒,門片關閉時,安靜無聲有緩衝效果。
門片迴旋距離較小,且適用載重及門寬較寬,特別適合 應用於無障礙空間、通道門、一般大門片櫥櫃門或商業空間。







適用門片尺寸圖




應用範例



相關影片